Product Series
推薦產品
河南華東起重機械設備公司
服務熱線:400 086 9590
公司:河南華東起重機械設備有限公司
聯系人:賈經理
聯系電話:13903802779
地址:河南新鄉市封丘縣起重機工業園區
當前位置: 起重機 > 起重機文章
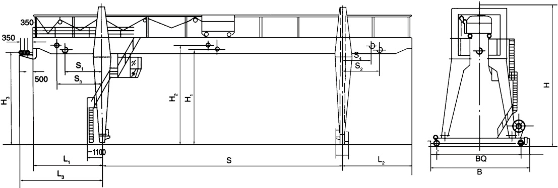
A型雙主梁門式起重機
時間:2024-05-20來源:起重機廠家瀏覽次數:1


A型5~160噸雙梁吊鉤門式起重機
AType5~160tDoubleBeamHookGantryCrane
A型雙主梁吊鉤門式起重機適用于露天貨場、鐵路沿線作業進行一般的裝卸及起重搬運工作。A型門架結構,上面帶有馬鞍結構,受力合理,為國內使用廣泛的雙主梁門式起重機。根據其結構形式,可分為包廂式MG,額定起重量5~320t;以及減少風阻而設計的桁架式MGH結構,額定起重量為5~160t。
上一篇:橋式起重機的常見故障及其排除方法
推薦文章:




















