Product Series
推薦產品
河南華東起重機械設備公司
服務熱線:400 086 9590
公司:河南華東起重機械設備有限公司
聯系人:賈經理
聯系電話:13903802779
地址:河南新鄉市封丘縣起重機工業園區
當前位置: 起重機 > 起重機文章
MG型雙主梁吊鉤門式起重機
時間:2024-04-22來源:起重機廠家瀏覽次數:1
MG型雙主梁吊鉤門式起重機產品介紹:
MG型雙梁吊鉤門式起重機規格:20T/5T、32T/8T、40T/10T、50T/10T、75T/20T等;跨度:13M、15M、17M、18M、19M、20M、22M、23M、30M等;起升高度:6M、9M、12M、16M、24M、30M等;還可根據用戶使用需求非標設計定做定制。

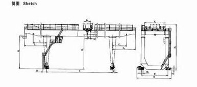
MG型雙主梁吊鉤門式起重機結構圖紙:
雙梁吊鉤門式起重機有橋架、大車運行機構、小車、電器設備等組成。橋架采用箱型雙梁焊接結構,大車運行機構采用分別驅動,全部機構均在操縱室操縱。門式起重機導電形式分為電纜和滑線兩種,用戶可任選一種,圖表中數據以滑線為準。

MG型雙主梁吊鉤門式起重機使用環境:
MG型雙主梁吊鉤門式起重機適用露天倉庫、料場、鐵路貨站、港口碼頭等裝卸搬運。還可以配以多種專用鉤具進行多種特殊作業。本系列起重機正常使用的環境應在一25℃~+40℃范圍內,24小時內的平均溫度不得超過十35℃。其它安裝使用地點的海拔高度不得超過2000米,超過1000米的應對電動機容量進行校核。




















