Product Series
推薦產品
河南華東起重機械設備公司
服務熱線:400 086 9590
公司:河南華東起重機械設備有限公司
聯系人:賈經理
聯系電話:13903802779
地址:河南新鄉市封丘縣起重機工業園區
當前位置: 起重機 > 起重機文章
QE型100+63/20噸電動雙梁、雙小車吊鉤橋式起重機技術參數表
時間:2024-04-16來源:起重機廠家瀏覽次數:1
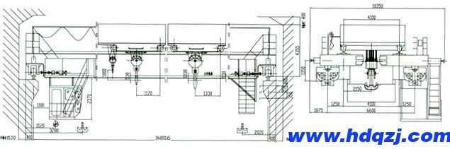
QE型100+63/20噸電動雙梁、雙小車吊鉤橋式起重機方案圖

QE型100+63/20噸電動雙梁、雙小車吊鉤橋式起重機技術規格參數:
工作級別 | A5 | ||
跨度 | m | 36.8 | |
起重機重量 | t | 203.3 | |
輪壓 | kN | 629 | |
起升高度 | m | 18/18/18 | |
速度 | 起重機運行 | m/min | 44.1 |
主小車運行 | 33.1 | ||
| 副小車運行 | 38.8 | ||
主起升 | 4.55 | ||
副起升 | 6.2 | ||
| 輔起升 | 9.3 | ||
電動機 | 起重機運行 | YZR225M-8/4x22kw | |
小車運行 | YZR180L-6/15kw | ||
| 副小車運行 | YZR180L-6/15kw | ||
起升 | YZR335M-10/90kw | ||
副起升 | YZR315M-10/75kw | ||
| 輔起升 | YZR250M1-8/30kw | ||
薦用軌道 | QU80 QU8100 | ||




















